Курган
Купить нашпальную прокладку ОП-366 ТУ 2539-161-01124323-2003 у нас на складе
| Контактное лицо: | Александр |
| Адрес: | |
| Телефон: | +79051454245 |
| Е-mail: | Отправить письмо |
| Сайт: |
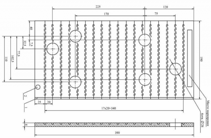
Прокладка резиновая ОП-366 под подкладку ДН6-65 ГОСТ Р 56291-2014,из наличия.
ТУ 2539-161-01124323-2003
Прокладка резиновая ОП-366 под подкладку применяется в качестве амортизатора между шпалой деревянной и подкладкой ДН6-65.
Вес 1шт.кг: 0.640
Размер (д/ш/в), мм:290x190x8
Доставка по России, или на самовывоз с нашего склада.к. т. +7(905)145-42-45, WhatsApp/Telegram.
2025-12-05
Отправить письмо